О жилом комплексе
Пентхаусы
Документация
Ход строительства
Планировки и цены
Расположение
О жилом комплексе
Пентхаусы
Ход строительства
Планировки и цены
Особенности
Расположение
773 775
Главная
|
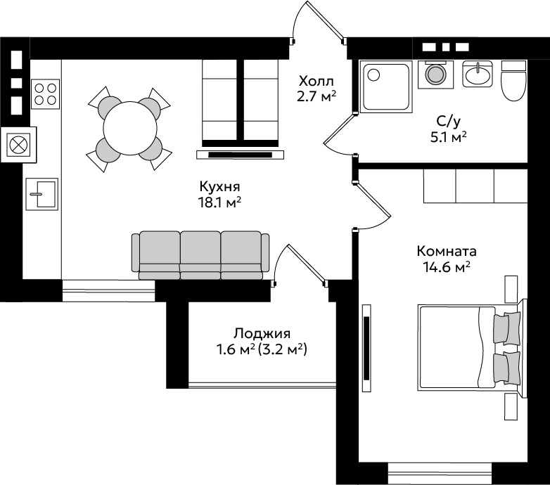
Планировки и цены
|
3 корпус 1 секция
|
5 этаж
|
Выбор квартиры
ЖК «Пражский»
Вернуться обратно
скачать планировку
Имя*
Телефон*
E-mail*
Корпус
1
2
3
Согласен(а) с
политикой конфиденциальности
Заявка на просмотр квартиры